Venta de Lotes en Villas del Paraíso, Paraíso de Cartago, Costa Rica, #1024

Add to favorites

Descripcion

Venta de Lotes en Villas del Paraíso, Paraíso de Cartago, Costa Rica

Precios desde ₡49.000.000 en adelante.

Se facilita la compra con prima desde ₡5.000.000 y posibilidad de financiamiento con cualquier banco.

 

Descubra un proyecto único rodeado de naturaleza, con hermosas vistas panorámicas y acceso exclusivo para propietarios. Villas del Paraíso es un residencial privado (no condominio) con una sola entrada, ideal para quienes buscan tranquilidad, seguridad y conexión con el entorno natural sin alejarse de la ciudad.

El proyecto cuenta con todos los servicios públicos disponibles: agua potable y electricidad. Además, el uso de suelo permite construir hasta un 60% del área total del terreno, brindando libertad para diseñar la casa de sus sueños.

Disponemos de lotes desde 1500 m² en adelante, algunos con características especiales como un terreno con deck y batería de baños, ideal para disfrutar desde el primer momento.

Ubicado a tan solo 15 minutos del centro de Paraíso hacia Cervantes, este desarrollo combina la vida campestre con las comodidades modernas. Rodeado de bosque y con acceso por dos vías, ofrece un entorno perfecto para familias, amantes de la naturaleza y mascotas.

 

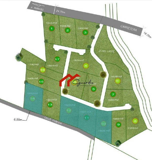
Lotes disponibles:

#1 1505 m²

#2 1504 m²

#4 1838 m²

#6 1629 m²

#7 1668 m²

#8 1553 m²

#16 1742 m² (con deck)

#18 1574 m²

Agenda tu visita, ven y enamórate del lugar donde tu nuevo hogar puede hacerse realidad.

 

Más información:

WhatsApp: (506) 8994-1707

www.guardiapropiedades.com

info@guardiapropiedades.com

 

Panoramica

Direccion Paraíso, Cartago

Propósito:   Venta  

Tipo:   Terreno  

País: Costa Rica

Ciudad: Cartago

Superficie:   más de 100m2  

Tamaño exacto: 1504 m2

Precio de venta: $ 100000

Visitas: 335

 Version para imprimir

Eficiencia energética

Normativa europea de eficiencia energetica no indicada


Normativa europea sobre el gas no indicada

Localidad 

Galeria de imagenes


Comentarios de Facebook

Otros inmuebles de este usuario

  • Venta de Casa Barrio El Descanso, Cervantes, Cartago. 

    300x200
    Venta
    Featured

    Cervantes, Cartago

    Tipo Casa

    Superficie 50-100m2

    Baños 1

    1

    Venta de Casa El Descanso, Cervantes, Cartago.

    $ 89.000,00 Detalles

  • Venta de casa en Urbanizacion Los Geranios, San Rafael, La Unión de Tres Ríos 

    300x200
    Venta
    Featured

    Tres Ríos, Cartago

    Tipo Casa

    Superficie más de 100m2

    Baños 2

    2

    Venta de casa en Urbanizacion Los Geranios, San Rafael, La Unión de Tres Ríos

    $ 162.000,00 Detalles

  • Alquiler de Oficinas y Consultorios, Los Ángeles, Cartago, Costa Rica 

    300x200
    Alquiler
    Featured

    Cartago, Cartago, Costa Rica

    Tipo Propiedad Comercial

    Superficie Menos de 50m2

    Baños -

    Alquiler de Oficinas y Consultorios, Los Ángeles, Cartago, Costa Rica

    $ 400,00  Detalles

  • Alquiler de Casa Amueblada Residencial Cerrado Los Lagos, Cartago, Costa Rica 

    300x200
    Alquiler
    Featured

    Cartago, Cartago, Costa Rica

    Tipo Casa

    Superficie más de 100m2

    Baños 3

    3.5

    Alquiler de Casa Amueblada Residencial Cerrado Los Lagos, Cartago, Costa Rica  

    $ 3.500,00  Detalles

  • Oportunidad de Inversión VENTA Lote en Portegolpe, Tempate, Santa Cruz, Guanacaste 

    300x200
    Venta
    Featured

    Santa Cruz, Guanacaste

    Tipo Terreno

    Superficie más de 100m2

    Baños -

    Oportunidad de Inversión VENTA Lote en Portegolpe, Tempate, Santa Cruz, Guanacaste

    $ 60.000,00 Detalles

  • Venta de casa en San Isidro del Guarco, Cartago 

    300x200
    Venta
    Featured

    San Isidro, El Guarco

    Tipo Casa

    Superficie más de 100m2

    Baños 2

    2

    Venta de casa en San Isidro del Guarco, Cartago

    $ 160.000,00 Detalles

  • Venta de Lote en Condominio Las Macadamias, Alajuela 

    300x200
    Venta
    Featured

    San Isidro, Alajuela

    Tipo Terreno

    Superficie más de 100m2

    Baños -

    Venta de Lote en Condominio Las Macadamias, Alajuela

    Detalles

  • Venta de Casa en Condominio Albacete, Cartago. 

    300x200
    Venta
    Featured

    El Tejar de El Guarco Cartago

    Tipo Condominio

    Superficie más de 100m2

    Baños 2

    2.5

    Venta de Casa en Condominio Albacete, Cartago.

    $ 350.000,00 Detalles

  • Venta de casa Uso Mixto, El Carmen, Cartago 

    300x200
    Venta
    Featured

    El Carmen, Cartago

    Tipo Casa

    Superficie más de 100m2

    Baños 3

    3.5

    Venta de casa Uso Mixto, El Carmen, Cartago

    $ 355.000,00 Detalles


    Panoramica

    Direccion Paraíso, Cartago

    Propósito:   Venta  

    Tipo:   Terreno  

    País: Costa Rica

    Ciudad: Cartago

    Superficie:   más de 100m2  

    Tamaño exacto: 1504 m2

    Precio de venta: $ 100000

    Visitas: 335

     Version para imprimir

    Contacto

    Formulario de solicitud